- Wettbewerb
- Sakralbau
- Umnutzung
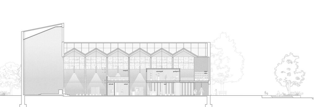
Unser Entwurf für den nicht-offenen Wettbewerb „Transformation der Pfarrkirche St. Magnus in Wernau zum Gemeindezentrum mit Kirche“ sieht einen sensiblen Umgang mit dem Bestand vor. 1960 wurde die von Gerald Reutter entworfene Kirche eingeweiht und prägt seither den Ortskern von Wernau am Neckar. Die Umplanung zur Kirche plus Gemeindezentrum wird erreicht, indem der bestehende Kirchenraum räumlich verkleinert wird. Der als Holzkonstruktion eingestellte „Raum im Raum“ trennt die zwei entstehenden Nutzungseinheiten „Sakralraum“ und „Neues Gemeindezentrum“. Im Haupteinfangsfoyer des Neuen Gemeindezentrum entsteht ein weiterer Einbau als Raum-im-Raum. Dieser schließt an die vorhandene Empore an. Das Raumvolumen öffnet sich im Erdgeschoss seiner Umgebung und kann durch verschiebbare Lamellen, transluzente Vorhänge, sowie Akustik vorhänge flexibel und spontan auf Raumanforderungen reagieren.

