- Wettbewerb
- Schulbau
- Schweiz
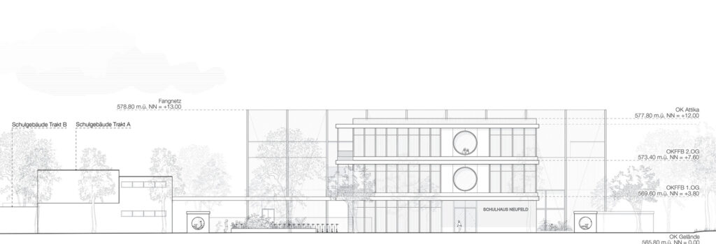
Der Schulbau in der Schweiz genießt ein hohes architektonisches Niveau. Der Wettbewerbsentwurf beinhaltet eine neue Doppelsporthalle, sowie ein dreigeschossiges Gebäude, das die Räume für die Schulerweiterung aufnimmt. Die beiden Neubauten bilden zur vielbefahrenen Straße im Norden hin eine deutliche Kante. Richtung Süden schafft der dreigeschossige Riegel zum Bestandsgebäude hin einen geschützten Außenbereich. Die Schulerweiterung ist bis auf die Treppenkerne und drei Wandscheiben als Holzbau konzipiert.

